Vendita 190.000,00€ - Ufficio
Ampio Ufficio Vendita Varese
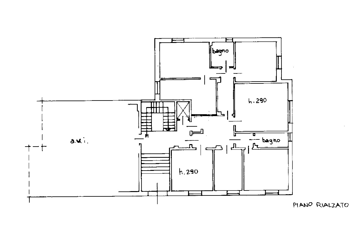
Nel centro di Varese, sulla via Sempione, proponiamo in VENDITA ampio ufficio di 178 mq.
Stabile degli anni ’80, ben tenuto, in zona ben visibile e di fronte al multipiano Sempione, a 5 minuti a piedi dal comune di Varese e a pochi minuti di macchina dalla Stazione e dall’ospedale Filippo del Ponte.
Ufficio posto al piano rialzato, di ampia metratura e ben distribuito con gli spazi, composto da doppio ingresso, 7 ampi vani e 2 servizi.
Richiesta € 190.000,00
Per maggiori informazioni o per fissare una visita chiamare al 3483802180 Geom. Pisani
| Consistenza | Piano | Superficie | Tipo | Conteggio al | Commerciale |
|---|---|---|---|---|---|
| Ufficio o studio | 1 | 178,0 m² | Principale | 100,0 % | 178,0 m² |
VUOI VENDERE CASA??
AFFIDATI A UN PROFESSIONISTA, SCEGLI SIRIAL!
AGENZIA IMMOBILIARE PRESENTE SUL TERRITORIO DA OLTRE TRENT’ANNI!!
CONTATTACI PER UNA VALUTAZIONE GRATUITA DEL TUO IMMOBILE!!
Ti offriamo pubblicità gratuita su tutti i maggiori portali immobiliari, dove il tuo immobile sarà sempre presente nei primi posti di ricerca, sponsorizzazioni sui social network e tanto tanto altro!
Per maggiori informazioni chiamaci al 0331323593 oppure inviateci una mail a info@immobiliaresirial.net
Seguici su:
– Facebook: facebook.com/sirial
– Instagram: sirial_immobiliare






