Vendita 600.000,00€ - Casa bifamiliare, Casa Plurifamiliare, Magazzino, Villa con Magazzino
A Oleggio, in posizione tranquilla e riservata, lontana dal traffico cittadino, proponiamo in vendita villa completamente indipendente con ampio magazzino al piano terreno.
La proprietà si sviluppa su più livelli:
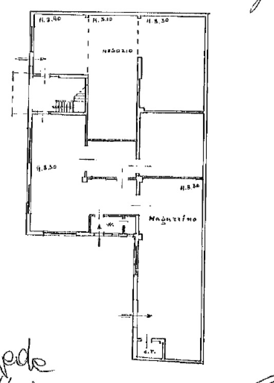
Piano terra: spazioso magazzino di circa 300 mq, ideale per attività artigianali, deposito o hobby, oltre a un ampio locale adibito a lavanderia.
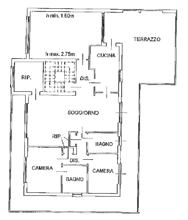
Primo piano: abitazione di circa 175 mq, completamente ristrutturata con materiali di alta qualità e finiture curate nei dettagli. Tutti gli ambienti sono dotati di aria condizionata per il massimo comfort. Sullo stesso livello troviamo uno splendido terrazzo, perfetto per pranzi all’aperto, momenti di relax e convivialità durante la bella stagione.
Secondo piano: appartamento di circa 75 mq composto da due locali, cucinotto e servizio, ideale come soluzione indipendente per familiari o come spazio aggiuntivo.
La villa viene venduta completamente arredata con mobili di pregio, valorizzando ulteriormente l’eleganza e lo stile degli ambienti.
Completano la proprietà un piazzale esterno e due box auto doppi, uno in larghezza e uno in lunghezza, che garantiscono comodità e ampio spazio di parcheggio.
Soluzione ideale non solo per chi è alla ricerca di indipendenza e ampi spazi, ma anche per chi desidera un investimento da mettere a reddito: al secondo piano infatti troviamo un appartamento completamente indipendente e il primo piano è facilmente divisibile in tre appartamenti, offrendo un’interessante opportunità di valorizzazione immobiliare.
Una proposta versatile, pronta da abitare o perfetta come investimento.
Richiesta € 600.000,00
Per maggiori informazioni o per fissare un appuntamento chiamare al 3401229770 Simonetta
| Consistenza | Piano | Superficie | Tipo | Conteggio al | Commerciale |
|---|---|---|---|---|---|
| Abitazione | 1 | 175,0 m² | Principale | 100,0 % | 175,0 m² |
| Abitazione | 2 | 75,0 m² | Principale | 100,0 % | 75,0 m² |
| Altro | Piano terra | 300,0 m² | Principale | 100,0 % | 300,0 m² |
| Box o garage | Piano terra | 50,0 m² | Principale | 50,0 % | 25,0 m² |
| Totale principale | 575,0 m² | ||||





























