Vendita 118.000,00€ - Appartamento
Zona comoda per stazione ferroviaria nord e per tutti i primari servizi
Proponiamo in esclusiva
GIA’ LIBERO
Contesto ben abitato
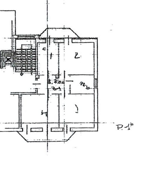
Luminoso appartamento di circa mq. 90
Ingresso, cucina abitabile con balcone esposto al sole del mattino
Soggiorno anch’esso con balcone lato strada
Camera matrimoniale spaziosa
Seconda camera di ottime dimensioni
Anche le camere hanno uscita sui balconi
Bagno ben illuminato con vasca utilizzabile anche come doccia
vano cantina al piano interrato
Autorimessa singola al piano terreno con basculante elettrificata
Richiesti euro 118.000,00
Il riscaldamento è con caldaia centralizzata e contabilizatori per ogni unità immobiliare
Classificazione energetica in corso di aggiornamento
Siamo disponibili per maggiori informazioni o per una visione in presenza
Tel. 327 13 12 803 Vilma
| Consistenza | Piano | Superficie | Tipo | Conteggio al | Commerciale |
|---|---|---|---|---|---|
| Abitazione | 1 | 93,0 m² | Principale | 100,0 % | 93,0 m² |
| Box o garage | Piano terra | 13,0 m² | Principale | 50,0 % | 6,5 m² |
| Totale principale | 99,5 m² | ||||



























