Vendita 420.000,00€ - Villa Bifamiliare
In zona Sant’Edoardo, all’interno di uno dei quartieri più ricercati della città, in posizione molto tranquilla e riservata ma a pochi passi da attività commerciali e scuole, proponiamo in VENDITA ESCLUSIVA interessante villa bifamiliare completamente indipendente con ampio giardino piantumato di circa 825 mq.
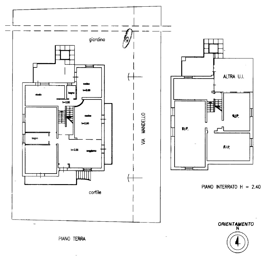
L’immobile è così composto:
– Appartamento al piano rialzato di 173 mq e composto da ampio salone con camino e cucina a vista, tre camere da letto, doppi servizi oltre a porticato e balconi per un totale di 41 mq circa;
– Appartamento al primo piano di 115 mq e composto da ingresso, ampio soggiorno molto luminoso con cucina a vista e uscita sul terrazzo, disimpegno notte con due camere da letto entrambe con balcone/terrazzo e ampio servizio con vasca angolare;
– Piano seminterrato di 150 mq, altezza 2,40 composto da 4 locali;
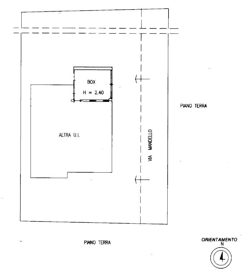
– Ampio box di 29 mq fuori terra.
Le due unità sono distinte ed indipendenti con i due ingessi separati ma collegate tra loro da scala interna e a seconda delle esigenze possono essere mantenute così o unificate in un’unica, grande soluzione abitativa.
Ideale per due nuclei familiari che vogliono rimanere vicini, pur mantenendo la propria indipendenza, oppure per chi desidera un’unica abitazione con ampi spazi ben sfruttabili!
La soluzione è perfetta per chi desidera vivere in una zona estremamente servita, tuttavia tranquilla e lontana dal traffico veicolare!
Richiesta € 420.000,00
Per maggiori informazioni o per fissare un appuntamento sul posto potete chiamare al 3483802180 Geom. Pisani Giorgio.
| Consistenza | Piano | Superficie | Tipo | Conteggio al | Commerciale |
|---|---|---|---|---|---|
| Abitazione | Piano rialzato | 173,3 m² | Principale | 100,0 % | 173,3 m² |
| Balcone | Piano rialzato | 41,5 m² | Principale | 30,0 % | 12,5 m² |
| Cantina | Seminterrato | 150,3 m² | Principale | 25,0 % | 37,6 m² |
| Abitazione | 1 | 115,0 m² | Principale | 100,0 % | 115,0 m² |
| Balcone | 1 | 16,0 m² | Principale | 30,0 % | 4,8 m² |
| Box o garage | Piano terra | 29,0 m² | Principale | 50,0 % | 14,5 m² |
| Giardino | Piano terra | 825,0 m² | Principale | 5,0 % | 41,3 m² |
| Totale principale | 398,9 m² | ||||
Guarda il VirtualTour 360 dell’immobile: https://tour360.getrix.it/vrtours/2262765/





































