Vendita 90.000,00€ - Appartamento
Trilocale da ristrutturare con progetto e render disponibili
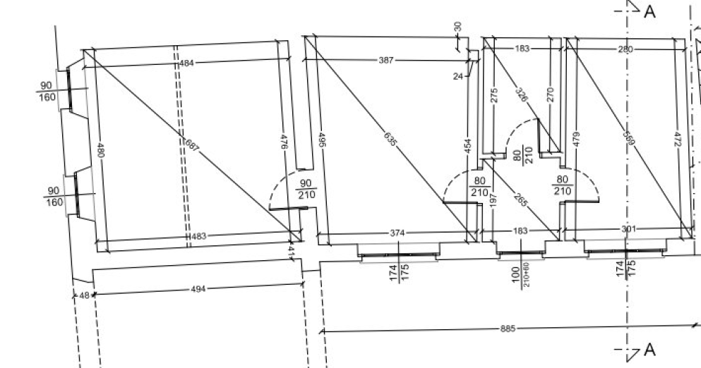
In posizione tranquilla e inserito in una tipica corte lombarda, proponiamo trilocale al piano terra totalmente da ristrutturare: la soluzione perfetta per chi desidera creare una casa moderna partendo da una base caratteristica.
L’ingresso principale avviene tramite passaggio comune che conduce una porta interna dove si accede direttamente all’abitazione, attualmente composta da cucina abitabile, soggiorno, camera e bagno.
Per facilitare la visione del potenziale dell’immobile sono disponibili render realistici, che mostrano una possibile trasformazione in un’abitazione elegante e funzionale composta da:
Luminoso soggiorno con angolo cottura, disimpegno che accompagna alla zona notte, camera matrimoniale, una cameretta e bagno completo con vasca.
La ristrutturazione permette di valorizzare gli spazi creando un contesto moderno in una cornice d’epoca.
Completa la proprietà di un possibile posto auto scoperto privato, incluso nel prezzo.
| Consistenza | Piano | Superficie | Tipo | Conteggio al | Commerciale |
|---|---|---|---|---|---|
| Abitazione | Piano terra | 70,0 m² | Principale | 100,0 % | 70,0 m² |
| Totale principale | 70,0 m² | ||||






















